東松戸第2有料駐車場
満車
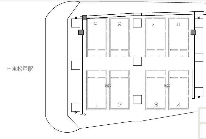
区画図

駐車場概要
| 所在地 | 千葉県松戸市東松戸2-201他 |
|---|---|
| 車両制限 | 全長4.8m以下、全幅1.8m以下 |
| 契約期間 | 1年間 |
| 備考 |
特徴
- 機械式
- 平置き
- アスファルト舗装
- 砂利敷
駐車場使用料
| 月額使用料 | 13,200円 |
|---|---|
| 契約手数料 | 1ヶ月 |
| 預り敷金 | 2ヶ月 |
| 更新料 | なし |
| 引落手数料 | なし |
| 保管場所使用承諾証明書 発行手数料 | 2,200円 |
駐車場・駐輪場・駐輪場なら京成パーク
満車
区画図

駐車場概要
| 所在地 | 千葉県松戸市東松戸2-201他 |
|---|---|
| 車両制限 | 全長4.8m以下、全幅1.8m以下 |
| 契約期間 | 1年間 |
| 備考 |
特徴
駐車場使用料
| 月額使用料 | 13,200円 |
|---|---|
| 契約手数料 | 1ヶ月 |
| 預り敷金 | 2ヶ月 |
| 更新料 | なし |
| 引落手数料 | なし |
| 保管場所使用承諾証明書 発行手数料 | 2,200円 |